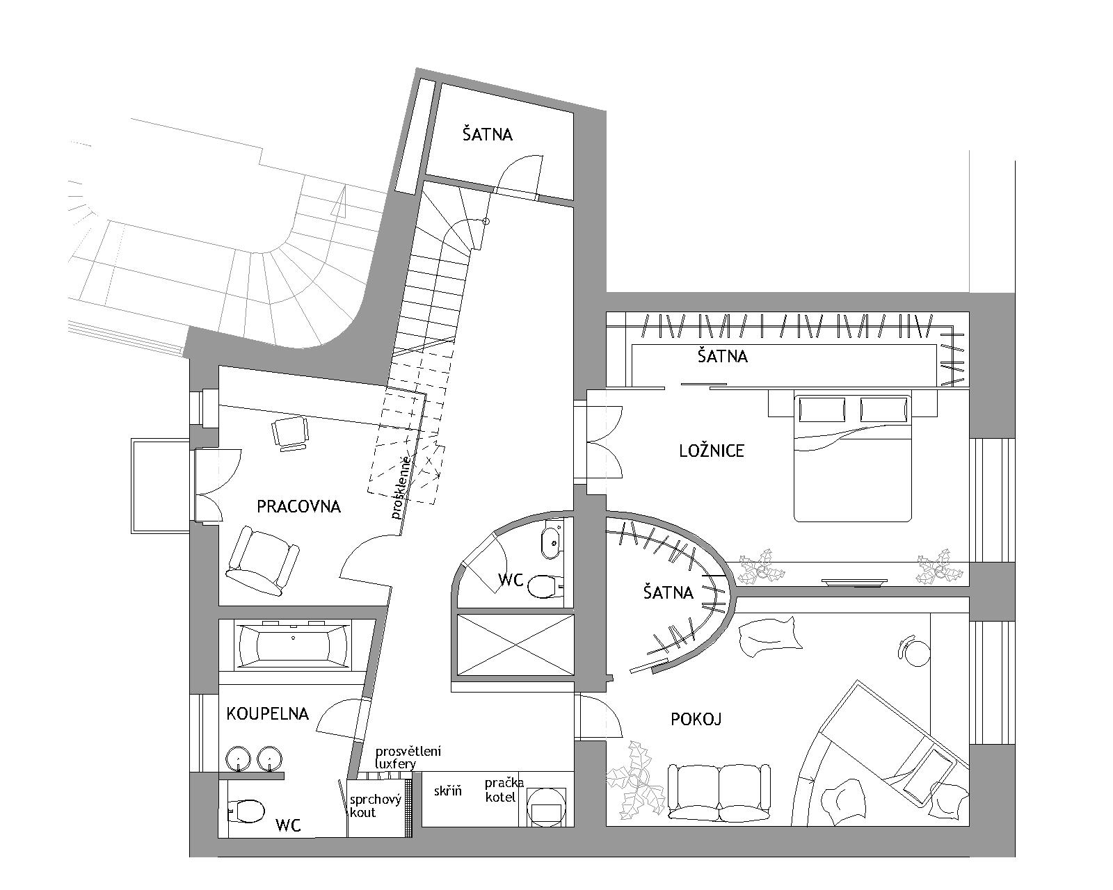
půdorys _1np.jpg