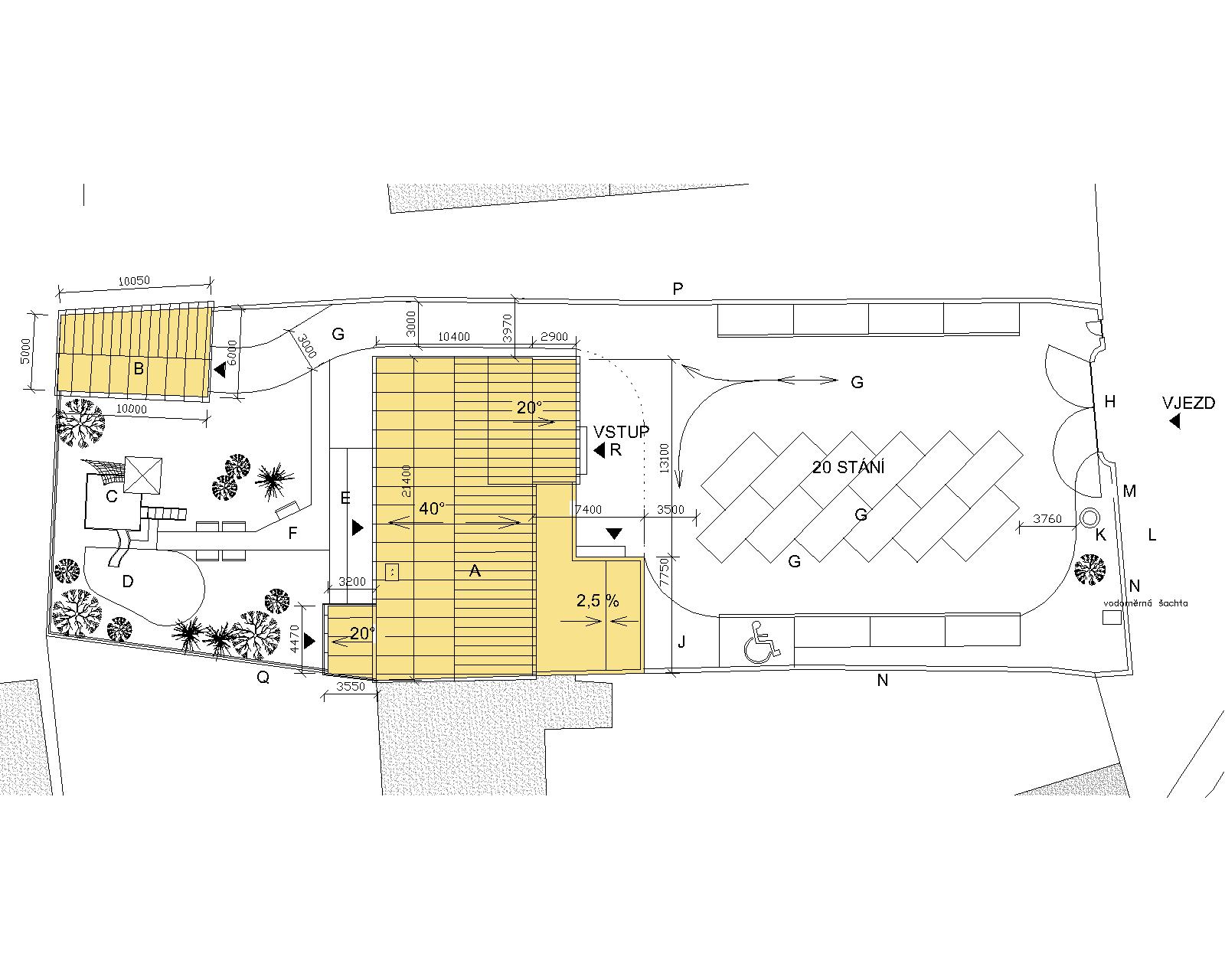
situace.jpg